


RM 1,488,000
3
Bedrooms
2 bath
Bathrooms
n/a
sq ft
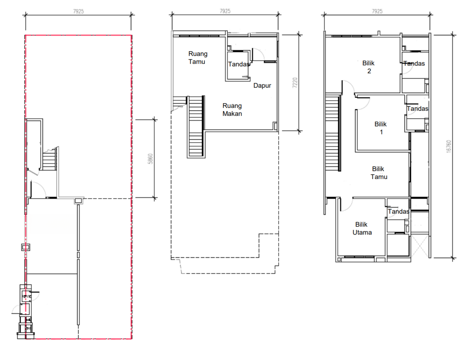
3-storey terrace houses located in Bandar 16 Sierra, Puchong. Expected completion date is April 20, 2027. The land size is 26' x 75'. Features include reinforced concrete frame structure, cement sand brick walls, metal deck & flat roof, skim coat ceiling finish, porcelain tiles for living, dining, kitchen, and bathrooms, ceramic wall tiles in the kitchen and bathrooms. Includes wooden doors, glass panel windows, and electrical fittings. Nearby amenities include easy access to LDP and SKVE Highway, and close to SILK and PLUS Highway. For inquiries contact :
<span
enable-mask="true"
original-value="0*****"
masked-value="0*****"
masking-type="phone"
📍 Sepang, Selangor
110 transactions · tap a card to view chart

LUSH DEVELOPMENT SDN. BHD.

LUSH DEVELOPMENT SDN. BHD.
LUSH DEVELOPMENT SDN. BHD.