




RM 333,000
3, 4 bath
Bathrooms
n/a
Size
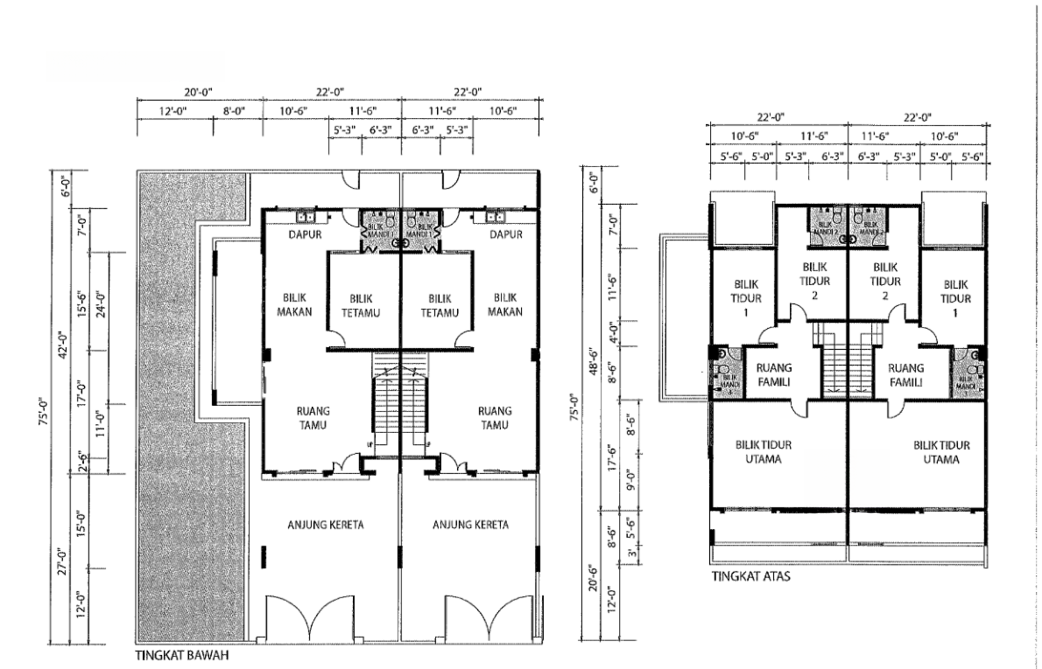
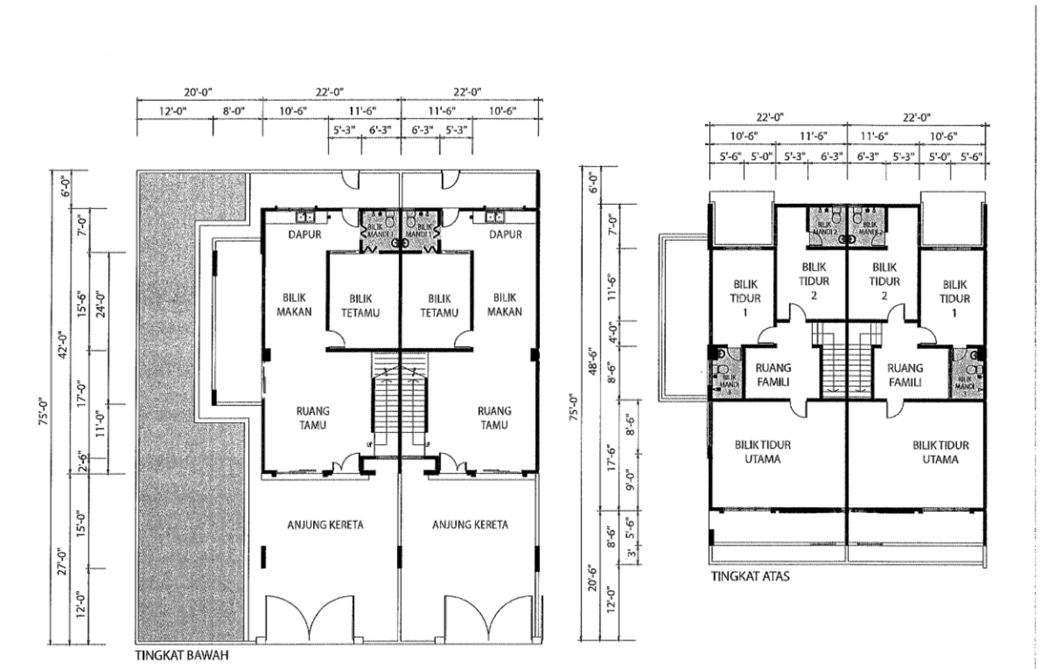
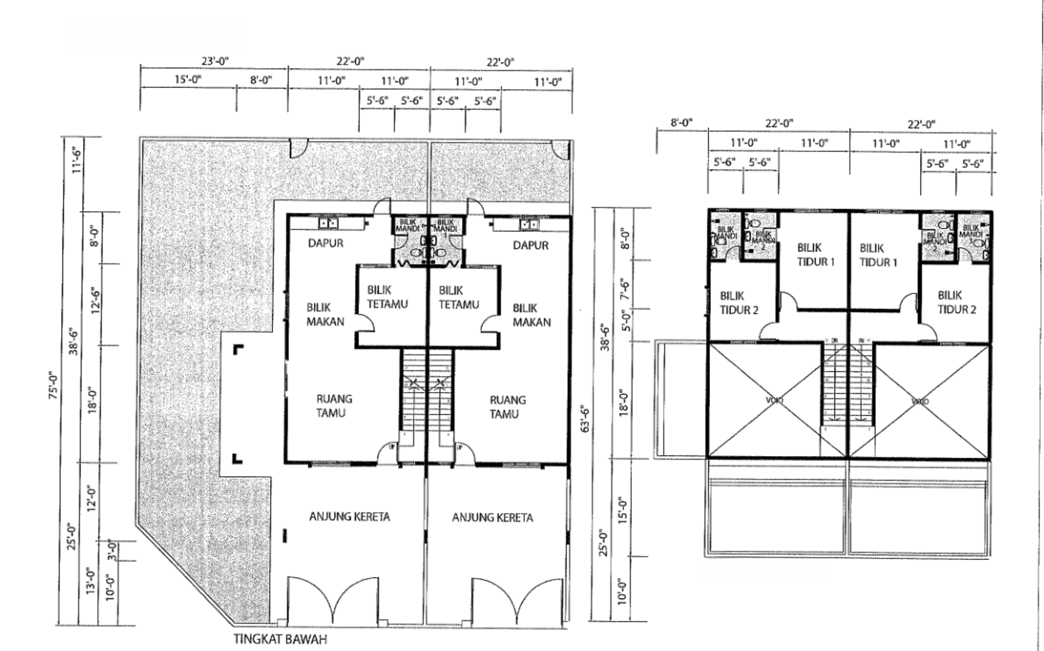
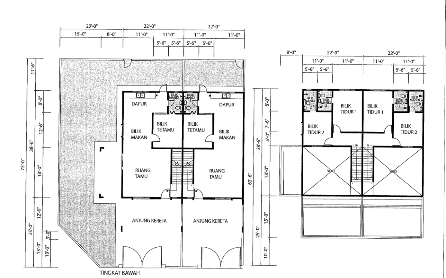
19 units of 2-storey terrace houses and 10 units of 1.5-storey terrace houses are available at Desa Chemor Aman Baru. The 2-storey units feature 4 bedrooms and 4 bathrooms. The 1.5-storey units consist of 3 bedrooms and 3 bathrooms. All units have a car porch, living room, dining area, and kitchen. The expected completion date is June 2024.
📍 Chemor, Perak
110 transactions · tap a card to view chart

TRANSGREEN REALTY SDN. BHD.
TRANSGREEN REALTY SDN. BHD.