





RM 275,000
3
Bedrooms
2 bath
Bathrooms
n/a
Size
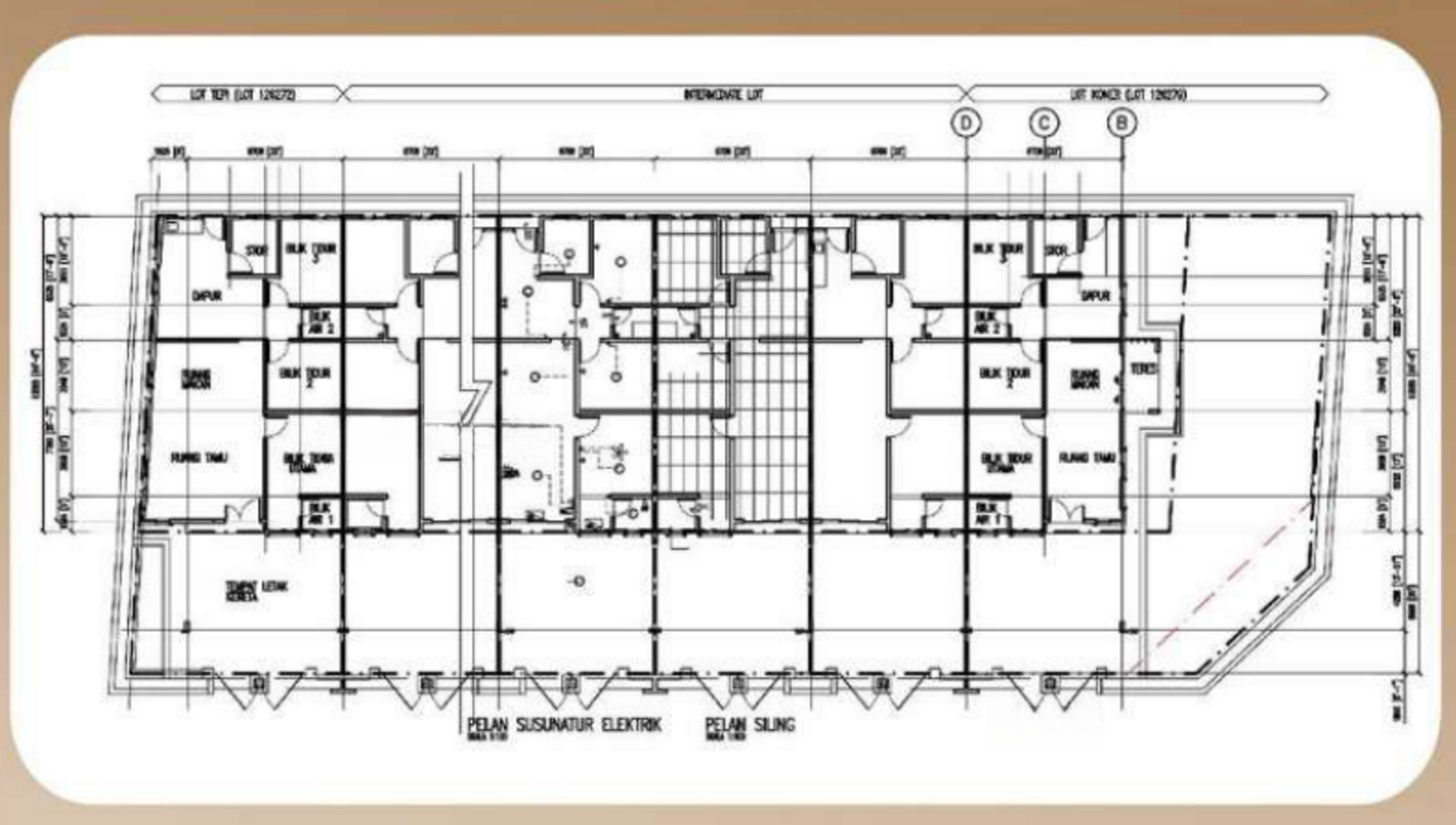
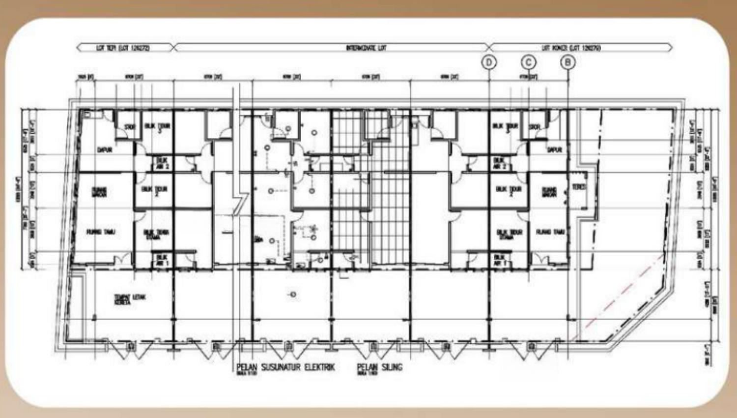
16 single-story terraced houses are proposed for construction on Lot
<span
enable-mask="true"
original-value="1*****"
masked-value="1*****"
masking-type="phone"
>
, Jalan Kuantan-Gambang, Mukim Kuala Kuantan, Kuantan, Pahang. The houses will feature reinforced concrete frames, plastered brick walls, tiled bathrooms and kitchens, asbestos ceilings, and aluminum-framed sliding windows. Amenities include squat and sitting toilets, basins, showers, a kitchen sink, ceiling fans, light fixtures, and air conditioning points. The property is freehold, and the expected completion date is July 2026.
📍 Kuantan, Pahang
3 transactions · tap a card to view chart

YEO'S ENGINEERING SDN. BHD.
YEO'S ENGINEERING SDN. BHD.