





RM 850,000
5
Bedrooms
4Baths
Bathrooms
2,800 sqft
Size
Freehold tenure
Tenure
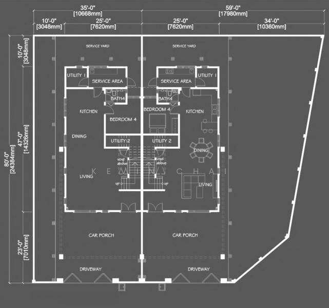
Ipoh Pulai Heights Freehold New 2 Storey Semi D- Freehold Title- Virgin Solid Land- Newly Completed, Ready to Move in- 24 Hours SecuritySelling Price RM850,000Free S&P and Loan Agreement Legal FeeLand Size 35'x 80'Build Up Area 2070sqft4 Bedrooms4 Bathrooms1 Utilities RoomFacing South East3 Phase WiringAlarm Security SystemLocation4 mins to Lotus Pulai Hartamas,5 mins to Shen Jai Private School & Fairview International School6 mins to Seri Botani International School, EcoPark Seri Botani10 mins to Simpang Pulai Toll15 mins to Ipoh ParadeConnect with me on Facebook, Instagram@Kevin Chai - Kampar Ipoh PropertyTikTok Malay: @kevinchai_property @kevinchai.perakpropertyTikTok Chinese: @kevinperakproperty @kevinchai_perakpropertyKevin Chai 017,332,2988Esther Chee 012,332,9235
📍 Ipoh, Perak
158 transactions · tap a card to view chart

Kevin Chai
PDL REALTY