Kuala Lumpur · The Fiddlewoodz @ KL Metropolis






RM 1,300,000
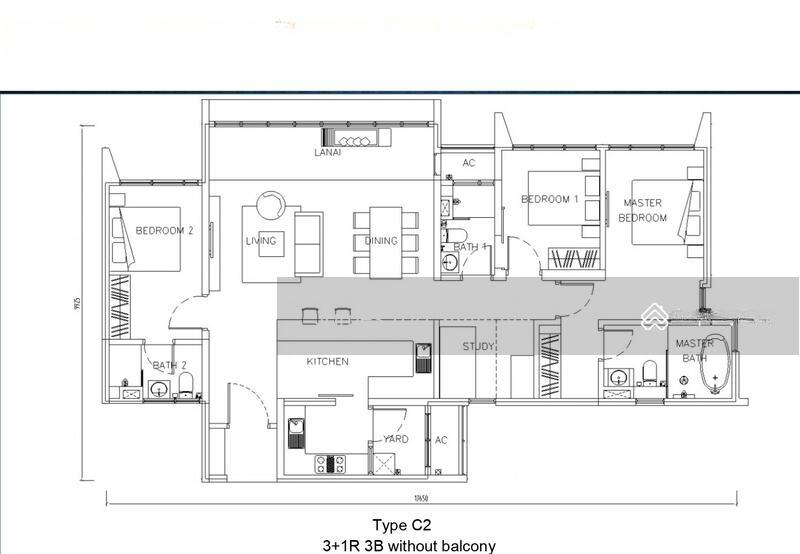
4
Bedrooms
3Baths
Bathrooms
1,469 sqft
Size
Freehold tenure
Tenure
Fiddlewoodz For Sale !!!Direct Developer!!!-First 360 Degree Infinity Sky Pool in Malaysia-FREEHOLD-Walk to MRT-Walk to Mega Mall- 2-4 Bedrooms (889sqft – 1476sqft)- Walking Distance to Lifestyle Mall over 2 Million sqft of retail space- Seamless connectivity to 6 Major Highway- Walking Distance to Future MRT Station- Low Density – 679 Units-Free SPA Legal Fee-Free Loan Legal Fee-Free Loan Stamp DutyContact us for more information/Viewing appointment 0***** James YapDirect Developer !!!
📍 Jalan Dutamas 2, Dutamas, Kuala Lumpur

James Yap
POWER HOME REALTY (HQ) SDN BHD [ E (1) 2082 ]