





RM 600,000
1
Bedrooms
1Bath
Bathrooms
743 sqft
Size
Freehold tenure
Tenure
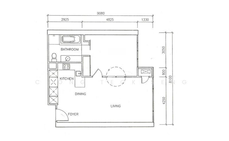
Gateway Kiaramas, Mont Kiara | High Floor | Unblocked View | Tenanted InvestmentA stunning high-floor unit at Gateway Kiaramas that boasts a magnificent unblocked view of Mont Kiara and the city skyline, ideal for those who value light, space, and scenery.This unit has a built-up area of 743 sq ft, comprising 1 bedroom, 1 bathroom, and includes 1 allocated car park. The original developer’s finishes already feature built-in kitchen cabinets, built-in wardrobes, and a fully fitted bathroom. The owner has further upgraded the home with stylish renovations, including:• Custom-built carpentry cabinets at the entrance• A built-in dressing table• Plaster ceiling with soft lighting• Additional thoughtful enhancements that elevate the overall aesthetic and functionalityThe layout is efficient and practical, making it suitable for singles or couples looking for a comfortable urban lifestyle.From an investment standpoint, this unit serves as a remarkable income-generating property. It is currently leased at RM 2,850 per month, with the tenancy secured until 28 February 2027, providing immediate and stable rental returns.Gateway Kiaramas is a contemporary development in the heart of Mont Kiara, renowned for its convenience and lifestyle appeal. Residents benefit from comprehensive facilities such as a swimming pool, gym, and 24-hour security. It is strategically located near international schools, retail outlets, cafes, and offices, offering easy access to major highways.Whether for personal use or investment, this unit represents an outstanding opportunity in one of Mont Kiara’s most desirable developments.
📍 Mont Kiara, Kuala Lumpur
177 transactions · tap a card to view chart

Chong Teck Seng
KOMMONS REALTY SDN. BHD [ E (1) 2150/1 ]