Selangor · Tamarind Square @ Cyberjaya, Selangor






RM 8,000,000
2Baths
Bathrooms
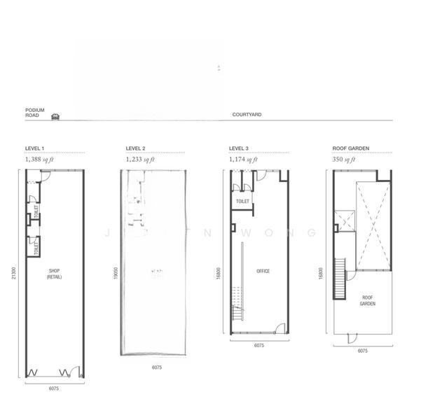
4,182 sqft
Size
Freehold tenure
Tenure
Elevate your business at one of the premium commercial address in Cyberjaya!**Limited and Exclusive 2 blocks for Sale, side by side for adjoining (total 6 units in 3 levels)**Prime location, adjacent to village grocer and F&B hotspot area**Fully tenanted, sales with tenancy**Build up size 4182sf for each block**Comes with private rooftop gardenPlease contact Jaclyn 016**689***8873 for more info and viewing.
📍 Tamarind Square, Persiaran Multimedia, Cyber 10, Cyberjaya, Selangor
34 transactions · tap a card to view chart

Jaclyn Wong
IQI REALTY SDN. BHD. [ E (1) 1584 ]