





RM 4,380,000
2Baths
Bathrooms
9,802 sqft
Size
Freehold tenure
Tenure
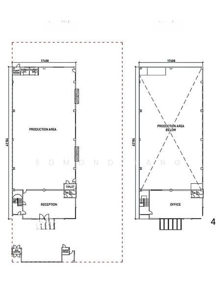
大款Semi D 工厂80x200ft 少人要卖单位Setia Business Park 2Dato Onn FactoryFor Sale : RM4.38 MillionsAddress : xx, Jalan Perniagaan Setia x Taman Perniagaan Setia 81100 Johor Bahru.Type : 1.5 Storey Semi detached(Light Industry)Unit Type : IntermediateTenure : Freehold non bumiLand Size : 16,000 sq ft (80x200 sq ft)Built up : 9802 sq ftRenovation : PartialFurnishing : PartialDirection : SouthG&G : YesMaintenance Fee : Rm500House Year : 4years+-Max Ceiling Height:8 MeterPower Supply:150-200AmpProduction area: 58 x 112 ft (6496 sq ft)Reception / Office Area: 58 x 26 ft (1508 sq ft)Entrance into Building: 2 Roller ShuttersWelcome contact Edmond / Cherry for a viewing appointment!This unit not available for co-agency, tq!
📍 0 Jalan Perniagaan Setia 1, Setia Business Park 2, Johor Bahru, Johor
78 transactions · tap a card to view chart

Edmond Tang
VIGOR PROPERTIES SDN BHD [ E (1) 1975 ]