





RM 2,000,000
4Baths
Bathrooms
6,475 sqft
Size
Freehold tenure
Tenure
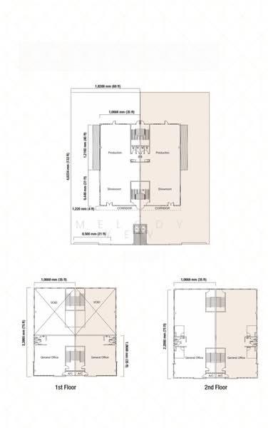
I-Parc 3层工厂半独立出售 ROIFor Sale 出售I-Parc Factory UnitGelang Patah Port Tanjung PelepasCategory: Light IndustryType: 3 Storey Semi-Detached FactoryLand area: 7920 sqft (60'x132')Built up area: 6475 sqftProduction ceiling height: 12meterFloor loading: 5Kn/m2Power supply: 150amp 3 pharsetenanted now Rm5300/mthtill 2027Selling Price :RM2.0Mil nego𝐍𝐞𝐚𝐫- SILC- Tuas Check Point Second Link- Skudai Highway - Pasir Gudang- Pontian- Iskandar Puteri
📍 2 Jalan Tanjung Pelepas 2, TPTP, Iskandar Puteri (Nusajaya), Johor

Melody Yew
PROPNEX REALTY SDN BHD