





RMย 2,700,000
2Baths
Bathrooms
3,160 sqft
Size
Freehold tenure
Tenure
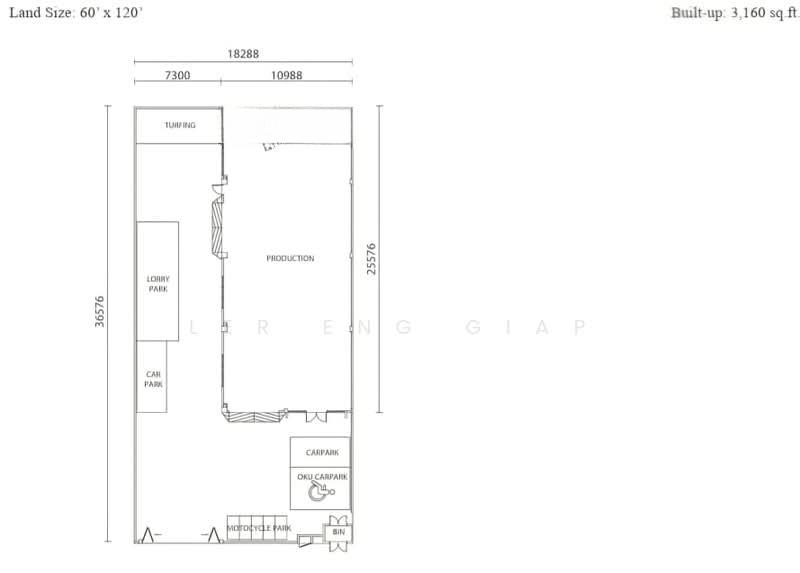
๐๐ข๐๐ข๐ฅ ๐๐๐๐ฅ๐จ, ๐ง๐๐๐ฅ๐๐จ, ๐๐๐ข ๐๐จ๐ฆ๐๐ก๐๐ฆ๐ฆ ๐ฃ๐๐ฅ๐ ๐ญ, ๐ฃ๐๐๐ฆ๐ ๐ฏ, ๐ฆ๐๐ก๐๐๐ ๐ฆ๐ง๐ข๐ฅ๐๐ฌ ๐๐๐จ๐ฆ๐ง๐๐ฅ ๐๐๐๐ง๐ข๐ฅ๐ฌ - ๐๐ข๐ฅ ๐ฆ๐๐๐.ๆฐๅฑฑ๏ผๅฐไธไฝฌๅบ๏ผ๐๐๐ข ๐๐จ๐ฆ๐๐ก๐๐ฆ๐ฆ ๐ฃ๐๐ฅ๐ ๐ญ,็ฌฌไธๆ๏ผๅๅฑๆฅผ้พๆฅๅผๅทฅๅใใธใงใใผใซใใซใใใใฉใฆใใจใณ ใใธใใน ใใผใฏ ๐ญใใใงใผใบ ๐ฏใๅนณๅฑใฏใฉในใฟใผๅทฅๅ ด - ่ฒฉๅฃฒไธญใ๐๐๐ก๐ ๐ง๐ฌ๐ฃ๐ | ๐จ๐ฆ๐๐๐, ๐๐๐ง๐๐๐ข๐ฅ๐๐๐ฆ | ๐จ๐ฆ๐๐๐ ๐ฅ๐๐ฆ๐ง๐ฅ๐๐๐ง๐๐ข๐ก.Land Title-Type Of Land Title: INDIVIDUALLand Title-Type Of Land Ownership: FREEHOLDLand Title-Type of Land Use: INDUSTRIALLand Title-Type of Land Designation: INTERNATIONAL LOTLand Title-Type of Industrial Category: LIGHT INDUSTRYIndustrial Communities: No๐๐๐ก๐ ๐๐ฅ๐๐, ๐๐จ๐๐๐ ๐จ๐ฃ, ๐ฃ๐ข๐ช๐๐ฅ ๐ฆ๐จ๐ฃ๐ฃ๐๐ฌLand Area | ๅๅฐ้ข็งฏ|: 7,200 sq.ft [ 60' x 120' ]Build Up Area | ๅปบๆๅบ/ๅปบ็ญ้ข็งฏ: 3,160 sq.ftCeiling Height | ๅทฅๅ้ซๅบฆ/ๅ้ซ: 7.5 meterFloor Loading | ๅฐ้ขๆฟ้/่ท่ฝฝ: 10 kn/m2Power Supply | ็ตๅ้ ็ฝฎ : 150 Amp (3 Phase)๐๐๐๐ง๐ข๐ฅ๐ฌ ๐ง๐ฌ๐ฃ๐ | ๐๐๐๐๐๐ง๐ฆ | ๐ฅ๐๐ก๐ข๐ฉ๐๐ง๐๐ข๐ก | ๐๐๐ข๐ข๐ฅ ๐๐ข๐๐๐๐ก๐FACTORY TYPE | ๅทฅๅ็ฑปๅ: SINGLE STOREY | CLUSTER FACTORY.Factory Location | ๅทฅๅไฝ็ฝฎ: INTERMEDIATEFactory Renovation | ่ฃ ไฟฎ็ถๆ : - No -Furnishing Level | ๅฎถ็ง่ฎพๅค: - No -Facing | ๆนๅ :Gated Guarded Community | ไฟๅฎๅ็ฑฌ: Formal Gated & Guarded (G&G) Community๐ฅ๐๐ก๐ง๐๐ ๐๐ก๐๐ข๐ ๐ & ๐ฆ๐ง๐๐ง๐จ๐ฆMonthly | ๆฏๆ: RM 7,5001 Year | ไธๅนด: RM 90,000Tenancy | ็ง็บฆ๏ผ No more๐๐ฆ๐๐๐ก๐ ๐ฃ๐ฅ๐๐๐Asking Price | ่ฆไปท : RM 2,700,000== ===๐ฅ๐๐ ๐๐ฅ๐== ===LER ENG GIAPTHE ROOF REALTYTHE PILLARS GROUPโช+6*****
๐ Jalan Ekoperniagaan 1/5, Taman Perniagaan Setia, Johor Bahru, Johor
43 transactions ยท tap a card to view chart

Ler Eng Giap
THE ROOF REALTY SDN. BHD.