





RM 2,700,000
2Baths
Bathrooms
3,160 sqft
Size
Freehold tenure
Tenure
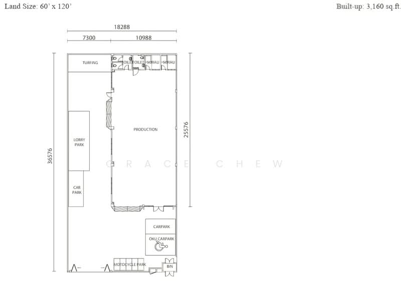
For SaleEco Business Park 1Jalan Ekoperniagaan 1/xxType: 1.5 Storey Cluster FactoryUnit Type: IntermediateTenure: Freehold Non BumiLand Size: 60' x 120' (7,200 sqft)Built Up: 3160 sqftLight IndustryCeiling Height: 7.5mElectric: 3 Phase 150ampDirection: TBCFacing: TBCG&G: YesHouse Year: TBCReason for Sale: Change PlanRemarks:1. No TABank Value: TBCAsking Selling: RM 2.7 mil- No Co-Broke- Grace: 017.7794.119
📍 Jalan Ekoperniagaan 1/5, Taman Perniagaan Setia, Johor Bahru, Johor
43 transactions · tap a card to view chart

Grace Chew
ROYCE PROPERTIES & REAL ESTATE SDN BHD [ E (1) 1934 ]